远野物语(第7/11页)
七十八
以下亦来自同一人之见闻。山口村长藏昔时曾来帮佣,现今年逾七十,仍健在。长藏曾于某夜出游晚归。主人家门面向大槌街道,长藏在门前巧遇自海滨来,身着雪衣之人,朝长藏走近后停住。长藏亦觉有异,只见其转身穿过大街,向对面稻田而去。长藏记得该处应有围墙,定睛一看,果真如此。忽觉惊恐,火速飞奔进屋,向主人禀明此事。日后方闻:同一时刻,新张村某人自海滨归来,却于途中坠马而死。
七十九
长藏之父亦名唤长藏,历代皆至田尻家上工,其妻亦如是。长藏年轻时,某次夜游,初更时分即归来。进门后,见洞前有人影伫立。此人双手伸入怀中,筒袖袖口下垂,脸部看不分明。其妻名唤阿常,长藏猜疑此人莫非阿常情夫?便快步走近。可对方并不往后逃,反走向右侧之玄关。此举轻蔑,惹恼长藏,故更向其逼近。却见此人依旧手拽怀中,倒退而行,自玄关三寸宽之门缝,迅速闪身入屋。然而长藏尚未察觉有异,便伸手往门缝内探索,未料里面拉门竟然紧闭。至此,长藏方心生恐惧,稍稍后退,举头一望,竟见男子紧贴玄关上之云壁*,正俯视自己。其头部低垂,几及于长藏脑门,眼球突出尺余,仿若即将跳出眼眶。此时当真惊恐万分,却非任何凶事之前兆(*:云壁为长押外侧之墙壁)。
八十
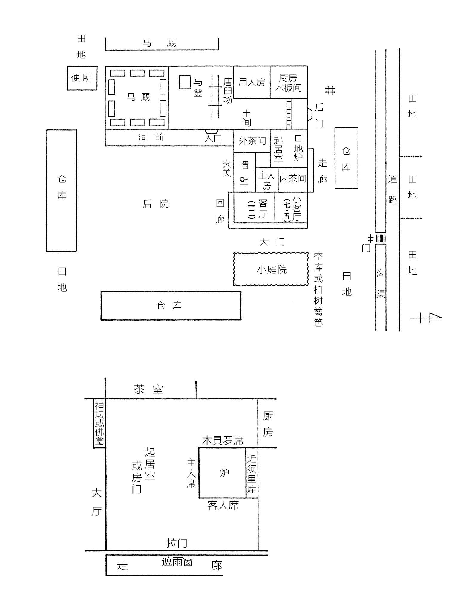
为充分了解前述传闻,须将田尻家以图面表示。远野乡之家屋建筑结构皆与此大同小异。
此户人家大门朝北,然而一般皆是朝东;依上图所示,位于马厩附近。大门称城前,宅邸四周皆为田地,不设围墙。主人之卧房与起居室之间有一小暗室,称为座头部屋。往昔每逢家中设宴,必邀座头到府演出。此房即为座头等候之间。
八十一
栃内小字野崎有人名唤前川万吉。两三年前已死,年三十有余。死前两三年之六月某夜,出游晚归,自门口沿回廊走到转角之际,随意往云壁看去,却见一面色惨白之男子,紧贴其上而眠。万吉因惊吓过度而罹病,然此事却非任何凶事之前兆。田尻氏之子丸吉为其好友,此乃丸吉听此人口述者。

八十二
此事为田尻丸吉之亲身遭遇。少时某夜自起居室起身如厕,进入茶间之际,见一人立于与大厅交界处。当时光线阴暗、人影朦胧,然衣物条纹与眼鼻五官、披头散发之状皆清晰可辨。丸吉虽心生恐惧,仍伸手探寻真伪,未料撞上门板,并触及门上木框。分明伸手不见五指,却见手上有人影映现。再将手伸向其人脸部,面容又映在手上。丸吉返回起居室与人说起,众人提灯前来一探究竟,却已杳无踪迹。丸吉思想先进,聪颖伶俐,且绝非妄言之人。

八十三
山口之大同有名为大洞万之丞之人家,房屋结构稍异于其他人家,如前页之图示。玄关朝向东南,屋龄极为古老。家中有一装盛古文书之竹篮,据说打开便会遭受神鬼惩罚,故未曾打开。
八十四
佐佐木之祖父年约七十,三四年前已亡故。此人年轻时代约为嘉永年间,彼时滨海之地定居之洋人甚多,釜石与山田皆有西洋馆。船越半岛尾端亦有洋人居住。当地民众秘密信仰基督教,远野乡亦有诸多教徒因而遭受磔刑。据前往海滨者所述,外国人经常拥抱、亲吻,至今仍有老人提及此事。海岸地方据说有相当多混血儿。
八十五
土渊村之柏崎,某父母皆为正统日本人之家,却生出两个白人之子。头发、皮肤乃至眼睛,都与西洋人别无二致。如今年二十六七,家中务农,口音亦与当地人迥异。声音细且尖。
八十六
土渊村中央乃小字本宿,为村公所与小学所在地。此地有人名唤阿政,开豆腐店为业,现年三十六七。其父病重弥留时,与本村隔着小乌濑川的小字下栃内村正大兴土木。某日傍晚正当固定地基,阿政之父独自前来,逐一问候众人,又说:“打地基是吗?我也来帮忙。”语毕,便加入工作了一会儿,直至天色渐晚,方偕同众人返家。之后众人察觉有异,想道:“他此时病重,怎能来此?”事后方听闻,当日乃阿政之父病逝之日。众人前去吊唁,提及此事,得知老翁出现时,正是即将咽气之际。
八十七
此乃远野町之豪门,唯姓名已不复记忆。其家主病重,生命垂危之际,突然造访菩提寺。住持郑重接待,并奉茶闲谈。不久即告辞离去。住持察觉有异,遣小沙弥跟随其后,一探究竟。只见此人出门后朝家里方向走去,转过街角便不见踪迹。当时于街市之中,亦曾有他人遇见此人,凡所见者,皆亲切问候,一如往常。尔后却听闻此人已于当日晚间往生,故当时全无外出可能。寺院为确认此人造访时是否饮茶,探看茶碗放置处,才知全部茶水皆泼洒于榻榻米之接缝。
八十八
以下亦为类似之故事。土渊村大字土渊之常坚寺隶属曹洞宗,为远野乡十二寺之触头。某日傍晚,村民某某自本宿来此,途中巧遇某老人。传闻老人大病已久,便问道:“何时痊愈的?”老人答:“这两三日舒坦多了,正要去寺里听法呢!”两人一同来到寺院门前,又交谈几句方道别。常坚寺住持见老人前来,特地出迎,并奉茶招待。闲话家常后便离去。住持亦遣小沙弥随后探看,未料老人一出门旋即消失。小沙弥吃惊,禀报住持。仔细一看,方见茶水全都泼在榻榻米缝里,老人已于当日过世。
八十九
自山口往赴柏崎,须绕过爱宕山麓。沿途之松林,始自田圃尽处,绵延至柏崎民家,便是一片杂树林。爱宕山顶有一小祠,参谒之路在此林间。登山口有一鸟居,二三十棵古杉林立,旁边另有一空荡荡之祠堂。堂前矗立一石塔,其上刻有山神*二字。传说此处往昔多有山神出没。和野某青年有事前往柏崎,傍晚路过此地,忽见一身高丈余者下山。好奇之余,便隔着树林,注视其脸部,一边向其走近。两人在转角处相遇,对方状甚意外。只见其脸色通红,眼光熠熠,面容写满惊异。青年方知山神是也,旋即转身,朝柏崎村狂奔而去(*:远野乡山神塔甚多。人们往昔多于此处遭遇山神或受其作祟,故多建石塔,以求宽宥)。
九十
松崎村有山名为天狗森,山麓有桑田。某日,村中某青年下田劳作,因困意难当,便在田埂坐下,打起盹来。此时,却倏然出现一赤脸巨男,此青年不多思虑,且平日即爱好相扑,见陌生大汉挡路,又状似轻蔑地低头俯视,便心生不悦。不觉起身,质问:“来者何人?”不料对方毫不搭理。青年向来自诩力大无穷,愈发上火,想给他点颜色瞧瞧,便使劲扑过去。怎知才碰上对方,自己就被甩飞,旋即失去意识。待傍晚醒转时,男子当然已经消失。返家后向家人说此遭遇。直至是年秋天,众多村人牵马至早池峰山腰割萩草。临去之际,独不见此男子踪影。众人忧心,便分头寻找,却见男子已死于深谷,且被拔去一手一足。此事距今已有二三十年,深知此来龙去脉之老人今犹健在。古来天狗森有许多天狗,乃众所周知之事。