2(第2/2页)
久保长了一双大眼睛,中等身材,年约四十。他戴着一顶紧裹着头的茶色毛线帽子,身穿灰色西装,看上去很是精明。
在场的就是以上八人,加上我和Puff总共十人。
“等下还有一个人要来。”糸井先生说。
“是谁啊?”阿赤问。
“小夏树。”
“啊,对,还有一个人。菜村夏树先生也说要来的。我们都叫他小夏树。他是‘钢丝锯齿’的常客,职业是推销员。”
说到这里,玄关那边传来了门铃声。
“啊,来了。”糸井先生说着,向玄关走去。
主人一打开门,立刻就听到外面激烈的风雨声。暴风雨看样子越来越大了。
“哎呀,真伤脑筋!”
飞溅的雨水也随着菜村的抱怨声一起冲进起居室,可能是因为风正好往屋里吹吧。从打开的门可以看到外面,在走廊日光灯的照射下,雨滴白色粉末般激烈地舞动着。
一关上门,房间便又回复到宁静温暖的舒适状态。进来的人放下伞,脱下湿透的雨衣挂在玄关的衣架上,又用毛巾仔细地擦干裤脚,才向我们这边走来。走近了再看,才发现他还挺年轻的,不过应该也超过三十岁了吧。
“巧,他就是小夏树。”
菜村也是大眼睛,头发三七分,穿着推销员的灰色西装。西装非常合身,做工也很细致。
“这两位是我们的新伙伴,吹萨克斯的巧和打鼓的Puff。”
菜村连个招呼也没打,以怀疑的目光上下打量我们一番,然后便完全无视我们的存在对其他人说:“雨太大了。我想电车可能会停驶就自己开车来了。”
电车停了么?我担心地和Puff对望了一眼。
预定要来的十一人全部都到齐了。彼此认识了之后,便一起谈笑起来。朝美小姐特别受欢迎,每个人都争着跟她搭话,菜村更是抢占了她对面的好位子,屁股生了根一样再也不肯挪窝。而完全对她没有兴趣的,就只有Puff和那个叫御手洗的男人了。
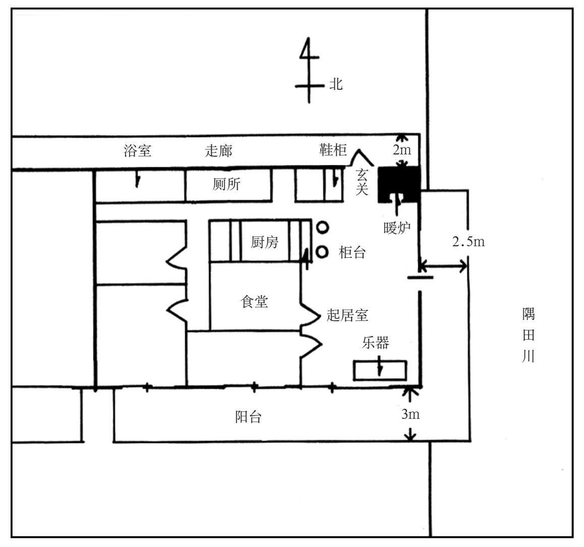
我让Puff陪我去阳台看看。刚刚开门的时候风是朝房间里吹的,所以我想或许阳台这边并不会被淋到。
果然不出所料,偌大的阳台,只要站在南侧无论在哪个位置基本上都不会淋到雨,都被公寓挡住了。
这个房间是在公寓的拐角,阳台也顺着房子的布局折成L形(图三)。如果走到东侧向下看,就能看到浊流翻腾的隅田川。但是走到那边就一定会被淋湿。
我和Puff站在L形阳台的折角处,观看在黑暗中肆虐的暴风雨。脚下的河水恐怕正波涛汹涌吧,但只能看到漆黑一片而看不到水面的情形。
对岸的点点灯火与高速公路的路灯连成一线,透过白色的雨雾映入我们的眼帘。
“这风景让人真想大喊一声!”因为风雨嘈杂,Puff大声地说。对此我也很有同感。

图三 Bird Cage的示意图
[1] 起源于法国,名称来自一九二五年巴黎举办的“巴黎国际现代化工业装饰艺术展览会”(The exposition des Arts Decoratifs)。它反对古典主义单纯手工艺的倾向而主张机械化的美,所以大量使用直线、对称和几何图形的构成,并大量使用了当时的新材料,如钢筋混凝土和合成树脂玻璃。